
“公园1903”是中国首个集成式公园生活范本,它将打造成一个开放式体验型Park Mall,项目聚集了城市开放区公园、主题百货、婚庆配套、超市、影院、一体化学校及高尚住宅等。它是休闲、娱乐、婚庆、时尚、餐饮、游乐及教育等一体的综合性多功能项目。
实景案例
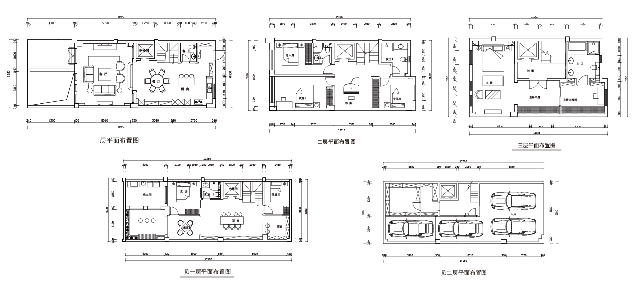
这是一个美式新贵古典主义的别墅设计,其建筑外观以典型的美式风格为特色,而室内设计更关注其文化和历史的包容性,以及空间设计上的深厚感受。它的精华来自于古典主义,但不是仿古也不是复古。美式风格追求的是一种声韵。

整个空间通透且明亮,客厅作为带客区域,简介、明快,装修较其他空间显得更加明快光鲜大面的地毯搭配造型优雅、舒适的美式沙发,再加上一侧华美的落地窗,尽显大气、华贵。设计师巧妙地运用美式风格的表现手法,即注重起居品质,又不过分张扬,成就了一室的低调奢华。


不需要处处摆设奢侈品,不需要钻石黄金的点缀。奢华的质地、。经典的装饰品、艺术的装饰画......这些足以让低调、奢华的气息无处不在,让生活回归自然,让心灵回归高尚,让艺术弥漫周围。















